Skip to content
About Us
City of Elmina
Facilities
Facilities Layout
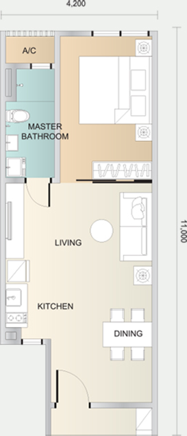
Floor Plan
Contact Us
Type Sovo
451 sq. ft.