Skip to content
About Us
City of Elmina
Facilities
Facilities Layout
Floor Plan
Contact Us
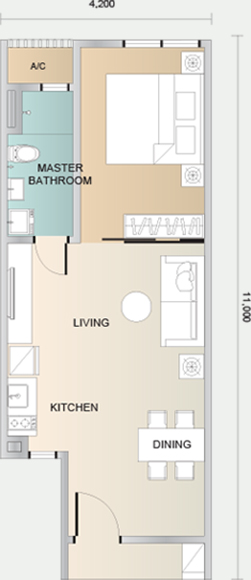
Type A -
Studio
565 sq. ft.
Type A Virtual Tour